Identité
Projets
Contact
Projets
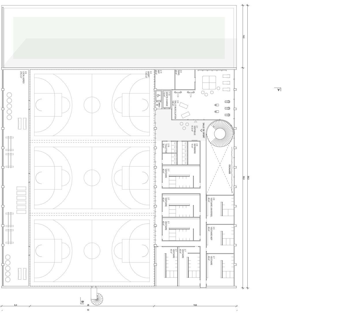
Concours salles de sport et centre de natation à Lussy (FR)
Concours salles de sport et centre de natation à Lussy (FR)
Concours de projets d’architecture à 1 degré en procédure ouverte
Année : 2025.
Visualisations :
Marcel Fritz Visualisierungen
Recherche
Ce site peut utiliser des cookies et des scripts externes.
Plus d'informations
Nécessaire
Paramètres
Statistiques
Marketing
Enregistrer les modifications
Réglages
Rejeter
Accepter tous les cookies
Accepter tous les cookies
Réglages
Rejeter